Multi family housing
Description
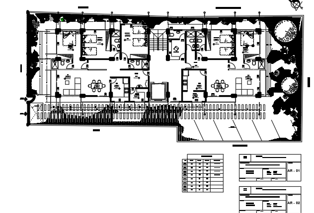
Here the detail drawing of Multifamily housing showing contextual plan, floor plans with furniture detail, circulation details, dimensions, electrical plan along with elevations and sections showing all required details with rendering and hatching of materials in autocad drawing.
Uploaded by:

