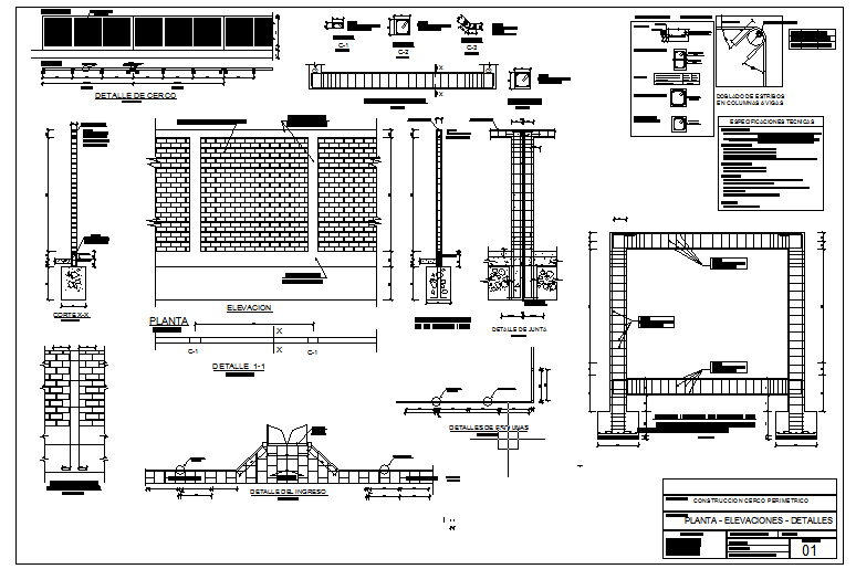
Details of a perimeter fence
Description
Here is the description for Detail of perimeter fence. presentation layout drawings with its elevations and detailing for the same is been given in this autocad file. A perimeter fence is a structure that circles the perimeter of an area to prevent access.
Uploaded by:

