LOGIN
HOME
CATEGORIES
UPLOAD FILE
PRICING
HOUSE PLAN
ABOUT US
CONTACT US
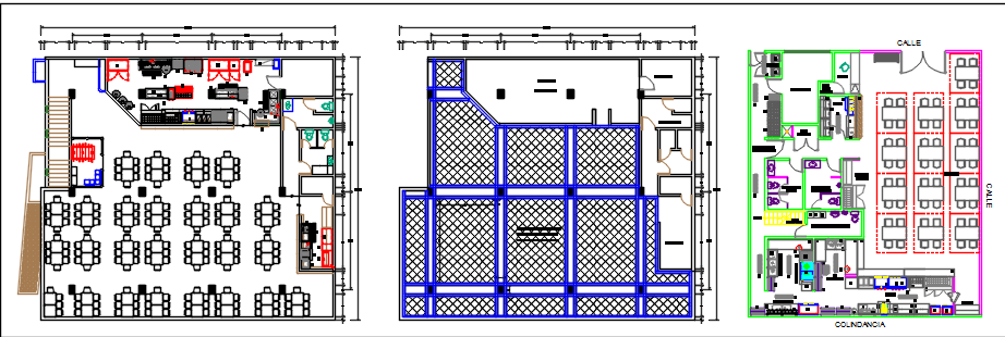
architectural plant and seafood restaurant dwg file
Home
Categories
Architecture
Hotels and Restaurants
architectural plant and seafood restaurant dwg file
Uploaded by:
Priyanka
Patel
View Profile
View Profile
Description
architectural plant and sea food restaurant dwg file, kitchen detailing, dining area, flooring design, big restaurant , big seating area
File Type:
DWG
File Size:
503 KB
Category::
Architecture
Sub Category::
Hotels and Restaurants
type:
Gold
Uploaded by:
Priyanka
Patel
View Profile
Download
Add to libary
find Latest
Related
Files