LOGIN
HOME
CATEGORIES
UPLOAD FILE
PRICING
HOUSE PLAN
ABOUT US
CONTACT US
restaurant dwg file
Home
Categories
Architecture
Hotels and Restaurants
restaurant dwg file
Uploaded by:
Priyanka
Patel
View Profile
View Profile
Description
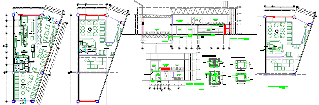
restaurant dwg file, exquisite dining, elevation of the restaurant, tall building, big banquet, kitchen details, layout structure, very gud detailing
File Type:
DWG
File Size:
675 KB
Category::
Architecture
Sub Category::
Hotels and Restaurants
type:
Gold
Uploaded by:
Priyanka
Patel
View Profile
Download
Add to libary
find Latest
Related
Files