Single Floor House AutoCAD Drawing with Living Room and Bedroom Plan
Description
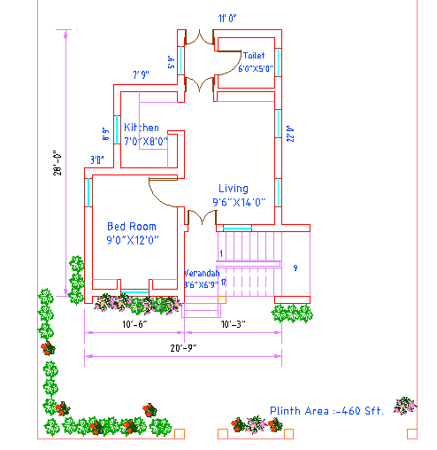
This single-floor house AutoCAD DWG file features a compact and efficient layout designed for small family living. The floor plan includes a living room (9’-6”x14’-0”), bedroom (9’-0”x12’-0”), kitchen (7’-0”x8’-0”), and toilet (5’-0”x5’-9”). The total plinth area is 460 sq. ft., making it an ideal plan for urban and semi-urban residential plots. The drawing provides accurate door, window, and wall placement, along with verandah detailing and surrounding garden landscaping.
This DWG file is perfect for architects, civil engineers, and builders working on small-scale residential projects. The simple yet practical design ensures optimal space utilization and easy customization based on site conditions. The layout includes proper ventilation and circulation, making it suitable for affordable housing schemes. Download this AutoCAD file now to explore a functional single-floor home layout with precise measurements and professional drafting quality.
Uploaded by:
keerthi
vasan

