LOGIN
HOME
CATEGORIES
UPLOAD FILE
PRICING
HOUSE PLAN
ABOUT US
CONTACT US
restaurant dwg file
Home
Categories
Architecture
Hotels and Restaurants
restaurant dwg file
Uploaded by:
Priyanka
Patel
View Profile
View Profile
Description
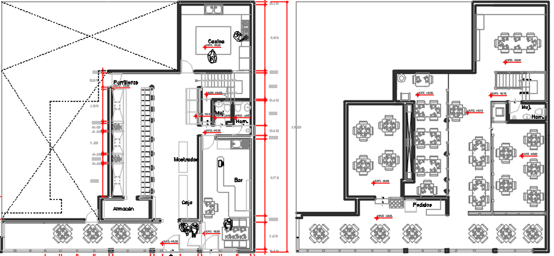
restaurant dwg file, various elevations of hotels , big hall, rooms, exotic design, dining area, waiting area, foyer area, hotel design in autocad format
File Type:
DWG
File Size:
396 KB
Category::
Architecture
Sub Category::
Hotels and Restaurants
type:
Gold
Uploaded by:
Priyanka
Patel
View Profile
Download
Add to libary
find Latest
Related
Files