LOGIN
HOME
CATEGORIES
UPLOAD FILE
PRICING
HOUSE PLAN
ABOUT US
CONTACT US
5 Star cafe plan
Home
Categories
Architecture
Hotels and Restaurants
5 Star cafe plan
Uploaded by:
viddhi
chajjed
View Profile
View Profile
Description
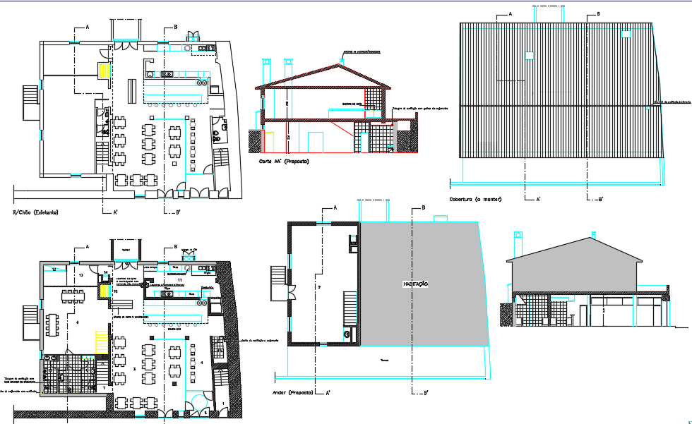
5 Star cafe plan dwg file. Find here layout plan 5 Star cafe plan structure plan, section plan and elevation design of 5 Star cafe plan
File Type:
DWG
File Size:
228 KB
Category::
Architecture
Sub Category::
Hotels and Restaurants
type:
Gold
Uploaded by:
viddhi
chajjed
View Profile
Download
Add to libary
find Latest
Related
Files