Door and Window AutoCAD DWG File with Detailed Front Views and Sizes
Description
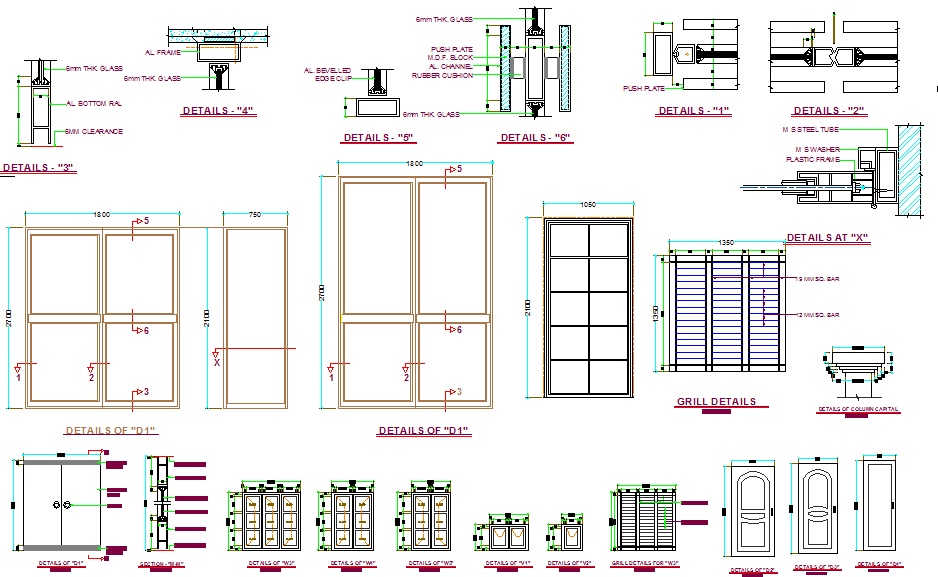
This AutoCAD DWG file includes a comprehensive Door and Window CAD drawing showcasing detailed front views, sectional drawings, and precise dimensional information. The file provides various styles and sizes of doors and windows, carefully designed to support architectural and interior design applications. Each element is accurately drafted with clear measurements, making it ideal for use in residential, commercial, and institutional building projects. Architects, engineers, and builders can utilize these drawings to ensure accurate design integration and structural alignment.
The file also highlights fine construction detailing such as glass thickness, aluminum framing, joinery profiles, and grill patterns. These CAD drawings follow industry drafting standards and are fully editable, allowing professionals to customize designs for specific project needs. With well-defined proportions, accurate scaling, and professional annotations, this DWG file serves as an essential reference for architects, designers, and engineers seeking precision and efficiency in project documentation.

Uploaded by:
Niraj
yadav

