10x17m First Floor House CAD Plan with Furniture Layout
Description
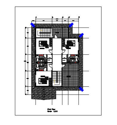
The furniture’s layout of the 10x17m first floor house plan is given in this CAD file. This is G+ 1 house building with 3bhk. On this first floor, the master bedroom with attached toilet, kid’s room with the attached toilet, guest room with the attached toilet, and two corridors are available. For more details download the AutoCAD drawing file from our website.
Uploaded by:

