The front section view of the 7x7m simple guest house building drawing
Description
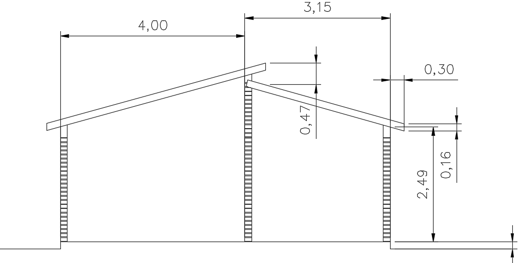
The front section view of the 7x7m simple guest house building drawing is given in this file. The height of the building is 3m. This is a single story house building. On this plan, the living room, and master bedroom with the attached toilet are available. For more details download the AutoCAD drawing file from our website. Thank you for downloading this Cad file from our cadbull website.
Uploaded by:

