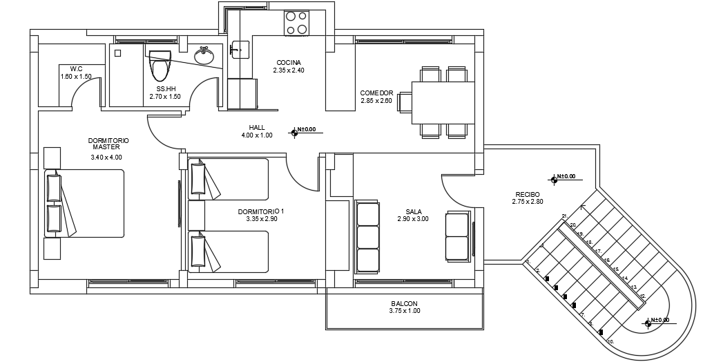
10x8m first floor architecture 2bhk house plan is given in this model
Description
10x8m first floor architecture 2bhk house plan is given in this model. On this first floor, the living room, kitchen, dining area, family lounge area, master bedroom with the attached toilet, kid’s room, and common bathroom is available. For more details download the AutoCAD drawing file from our website. Thank you for downloading this Cad file from our cadbull website.
Uploaded by:

