The switch point location of the 8x9m single story house plan
Description
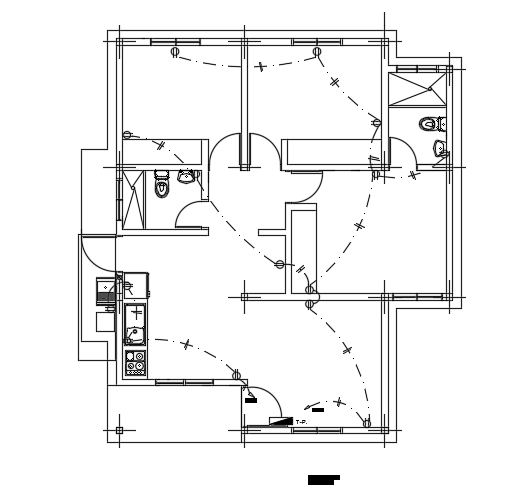
The switch point location of the 8x9m single story house plan 2d AutoCAD drawing is given in this model. Each switch point is mentioned. This is a single story residential building. On this ground floor, the living room, porch, kitchen, dining area, master bedroom with the attached toilet, kid’s room, guest room, and common bathroom is available. For more details download the AutoCAD drawing file from our cadbull website.
Uploaded by:

