8x7m architecture ground floor house plan AutoCAD drawing
Description
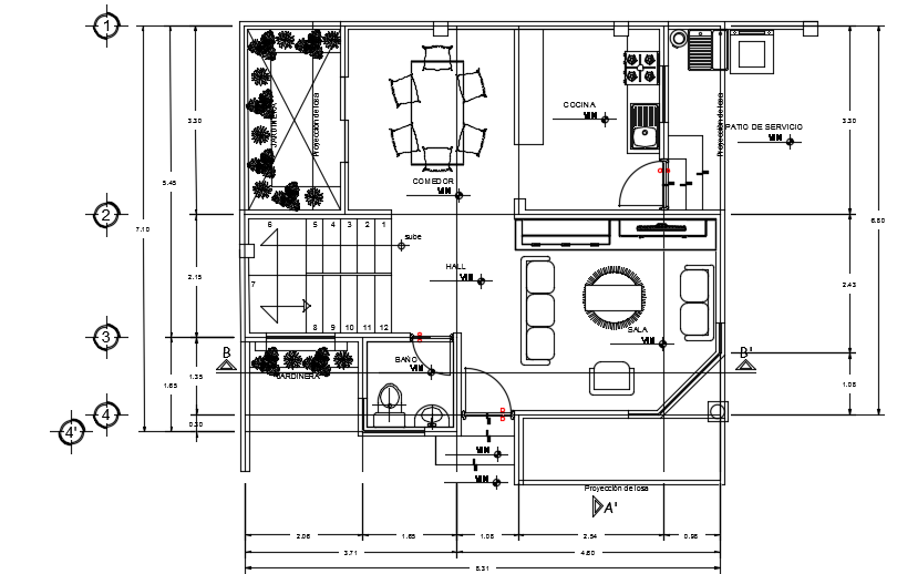
8x7m architecture ground floor house plan AutoCAD drawing is given in this file. This is two story residential building. On this ground floor, the living room, kitchen, dining area, and common bathroom is available. For more details download the AutoCAD drawing file from our cadbull website.
Uploaded by:

