14x8m architecture 1bhk house plan AutoCAD drawing
Description
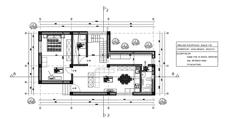
14x8m architecture 1bhk house plan AutoCAD drawing is given in this file. This is a single story house building. On this first floor, the living room, kitchen, dining area, laundry room, master bedroom, and common bathroom is available. For more details download the AutoCAD drawing file from our cadbull website.
Uploaded by:

