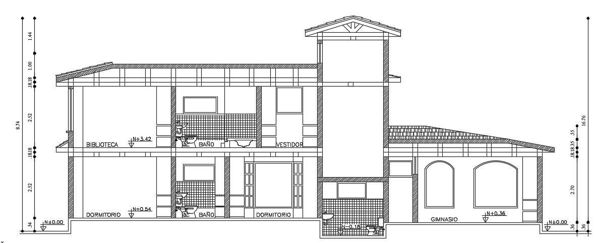
The left side section view of the 11x24m house building
Description
The left side section view of the 11x24m house building is given in this model. The total height of the building is 8.74m. This is G+ 1 residential building. On this ground floor, the living room, car parking, kitchen, dining area, breakfast area, gym with attached bathroom, master bedroom, kid’s room, porch, family lounge area, and common bathrooms are available. On this first floor, the living room, TV room, master bedroom, and common bathroom is available. For more details download the AutoCAD drawing file from our cadbull website.
Uploaded by:
