10x15m architecture 1bhk first floor house plan CAD model
Description
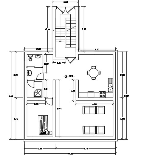
10x15m architecture 1bhk first floor house plan CAD model is given in this file. This is two story house building. On this first floor, the living room, kitchen, dining area, master bedroom, and common bathrooms are available. For more details download the AutoCAD drawing file from our cadbull website.
Uploaded by:
