15x28m house plan column and foundation layout CAD drawing
Description
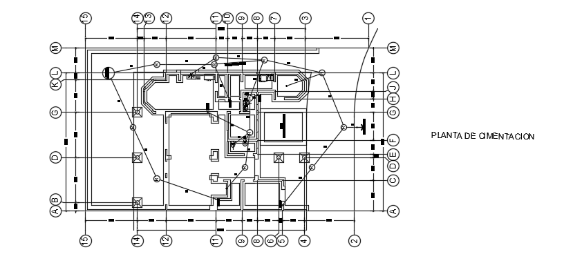
15x28m house plan column and foundation layout CAD drawing is given in this file. The distance between each foundation is mentioned. For more details download the AutoCAD drawing file from our cadbull website.
Uploaded by:

