10x16m ground floor and first floor house plan AutoCAD diagram
Description
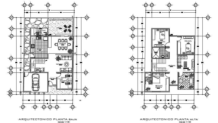
10x16m ground floor and first floor house plan AutoCAD diagram is given in this file. This is G+ 1 house building. On this ground floor, the car parking, vestibule, study room, living room, dining area, kitchen, garden, service area, and common bathroom is available. On this first floor, the TV room, terrace area, master bedroom with the attached toilet, kid’s room, guest room, and common bathrooms are available. For more details download the AutoCAD drawing file from our cadbull website.
Uploaded by:

