15x11m ground floor simple house plan AutoCAD drawing
Description
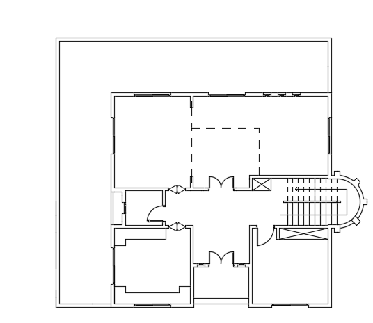
15x11m ground floor simple house plan AutoCAD drawing is given in this file. This is two story house building. The length and breadth of the site layout are 15m and 14.7m respectively. On this ground floor, the living room, kitchen, dining area, master bedroom, kid’s room, and common bathrooms are available. For more details download the AutoCAD drawing file from our cadbull website.
Uploaded by:

