15x11m first floor simple house plan AutoCAD drawing
Description
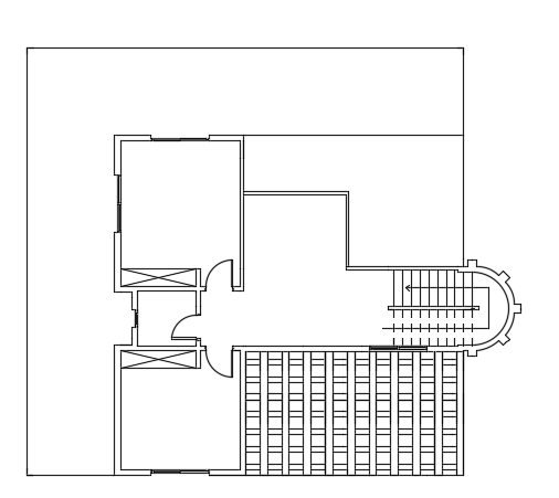
15x11m first floor simple house plan AutoCAD drawing is given in this file. This is two story house building. On this first floor, the living room, master bedroom, guest room, and common bathroom is available. For more details download the AutoCAD drawing file from our cadbull website.
Uploaded by:

