11x19m 2bhk house plan with garden AutoCAD 2d drawing
Description
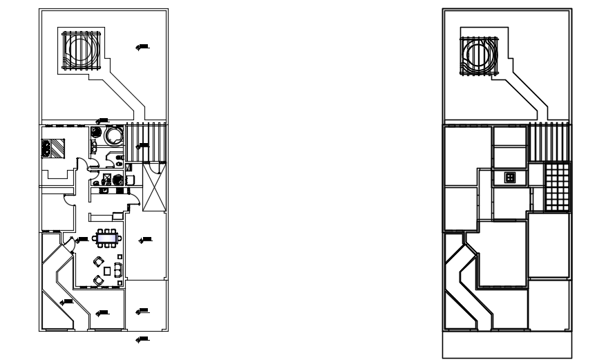
11x19m 2bhk house plan with garden AutoCAD 2d drawing is given in this file. A detailed view of the house plan is given. On this file, house plan, room dimension, and acotada is given. The living room, kitchen, dining area, master bedroom with the attached toilet & bathtub, kid’s bedroom, and common bathroom is available. Garden and patio is provided. The walk is provided front of the house. For more details download the AutoCAD drawing file from our cadbull website.
Uploaded by:

