16x12m architecture single family duplex house plan cad drawing
Description
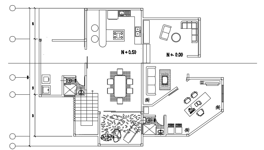
16x12m architecture single family duplex house plan cad drawing is given in this file. On this ground floor, the living room, small office room with the attached toilet, kitchen, dining area, open area, and common bathroom is available. For more details download the AutoCAD drawing file from our cadbull website.
Uploaded by:
