13x10m 3bhk wonderful house plan cad drawing is given in this file
Description
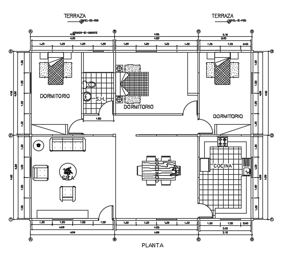
13x10m 3bhk wonderful house plan cad drawing is given in this file. This is a single story house building. On this floor, the living room, kitchen, dining area, master bedroom, kid’s room, guest room, and common bathrooms are available. For more details download the AutoCAD drawing model from our cadbull website.
Uploaded by:

