10x8m single story residential house plan 2d drawing is given
Description
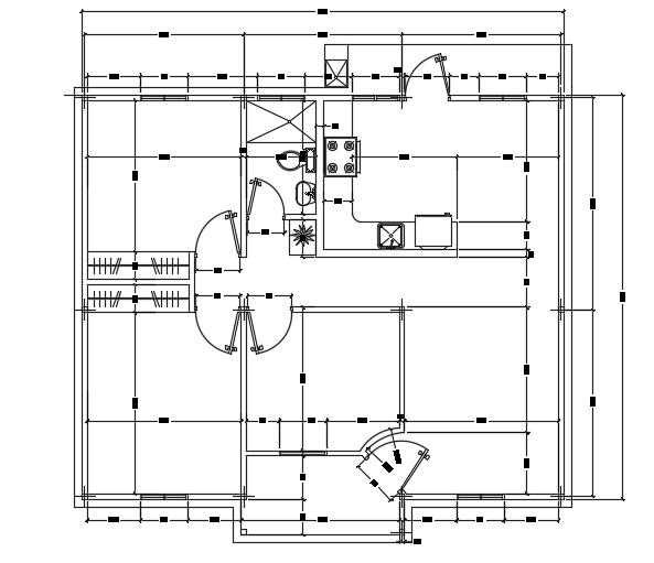
10x8m single story residential house plan 2d drawing is given in this file. This is a single story with the height of 3.41m. On this floor, the living room, kitchen, porch, dining area, master bedroom, kid’s room, guest room, and common bathroom is available. This is a 3bhk house plan. For more details download the AutoCAD drawing model from our cadbull website.
Uploaded by:

