House Furniture CAD Plans with Accurate Location Details

House Furniture CAD Plans with Accurate Location Details
Profile

Uploaded by:

Meera

Description
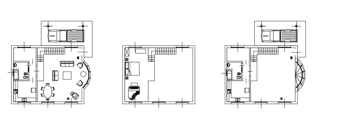
House furniture’s cad drawing and its location detail drawing is given in this file. For more details download the AutoCAD drawing model from our cadbull website.
Profile

Uploaded by:

Meera

find Latest

Related Files

WhatsApp Chat