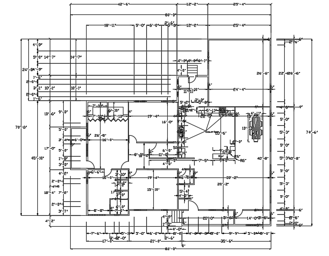
80’x75’ residential house 2d plan AutoCAD drawing
Description
80’x75’ residential house 2d plan AutoCAD drawing is given in this file. This is a single story residential building. This is a 3bhk house plan. On this ground floor, the living room, kitchen, dining area, master bedroom with the attached toilet & balcony, kid’s room, guest room, and two common bathrooms are available. For more details download the AutoCAD drawing model from our cadbull website.
Uploaded by:

