13x20m architecture 4bhk house plan AutoCAD drawing
Description
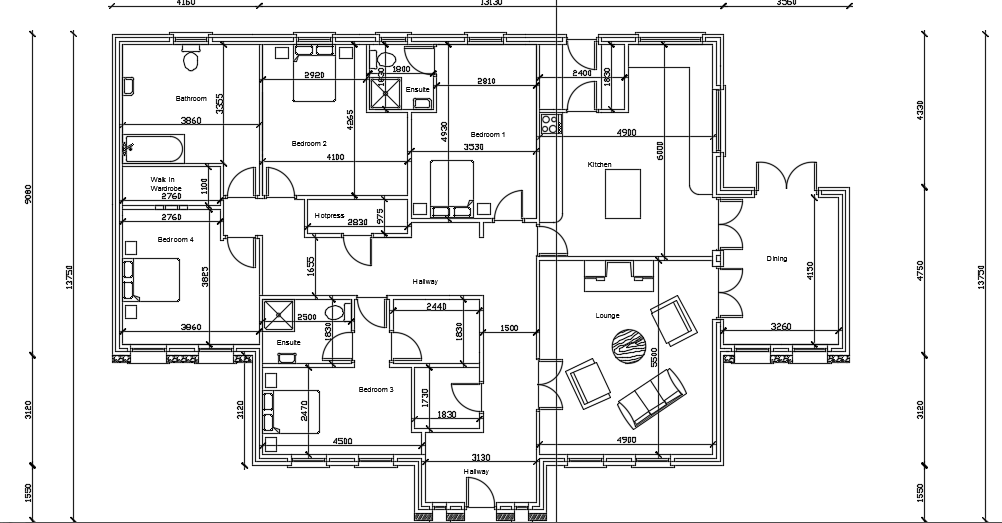
13x20m architecture 4bhk house plan AutoCAD drawing is given in this file. This is a single story house building. On this floor, the living room, kitchen, living room, master bedroom with the attached toilet, kid’s room with the attached toilet, two guest room, and common bathrooms are available. For more details download the AutoCAD drawing model from our cadbull website.
Uploaded by:

