16x18m architecture house plan AutoCAD drawing
Description
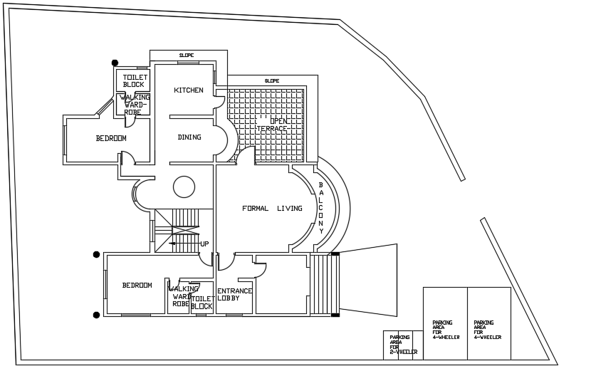
16x18m architecture house plan AutoCAD drawing is given in this file. This is two story house building. On this ground floor, kitchen, dining area, balcony, master bedroom with the attached toilet, kid’s room with the attached toilet, entrance lobby, and open terrace is available. For more details download the AutoCAD drawing model from our cadbull website.
Uploaded by:

