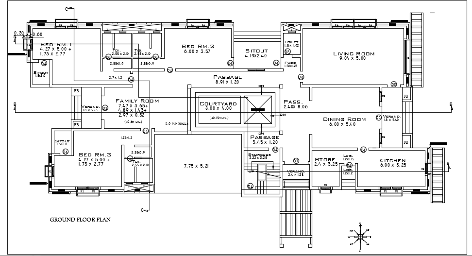
The dimension detail of the 40’X18’ground floor house plan
Description
The dimension detail of the 40’X18’ground floor house plan is given in this file. This is two story villa building. On this ground floor, the living room, verandah, courtyard, family room, master bedroom with the attached toilet, kid’s room with the attached toilet, guest room with the attached toilet, kitchen, dining area, passage, store room, sit out, and lobby is available. For more details download the AutoCAD drawing file from our website. Thank you for downloading the AutoCAD drawing file from our website.
Uploaded by:

