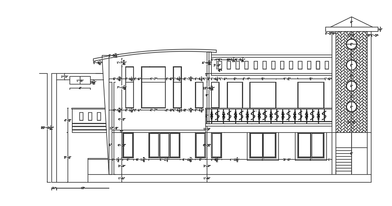
The main view of the 57’x29’multifamilytwo story house
Description
The main view of the 57’x29’multifamilytwo story house building 2D drawing is given in this cad file. On this ground floor, two houses are available. Two houses consist of the living rooms, kitchen, master bedroom, and common bathrooms are available. On this first floor, one house is available. The living room, kitchen, dining area, master bedroom with the attached toilet, kid’s room with the attached toilet, and common bathroom is available. For more details download the AutoCAD drawing file from our website. Thank you for downloading the AutoCAD drawing file from our website.
Uploaded by:

