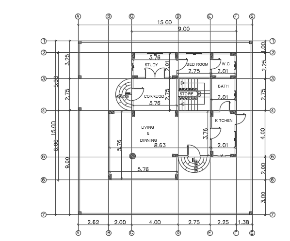
15x15m duplex ground floor villa house plan AutoCAD drawing
Description
15x15m duplex ground floor villa house plan AutoCAD drawing is given in this file. This is two story villa building. On this floor two houses are available on the ground floor, and first floor. On this ground floor, the living room, kitchen, corridor, store room, study room, master bedroom with the attached toilet, and common toilet is available. For more details download the AutoCAD drawing file from our website. Thank you for downloading the AutoCAD drawing file from our website.
Uploaded by:

