17x14m duplex bungalow first floor house plan AutoCAD drawing
Description
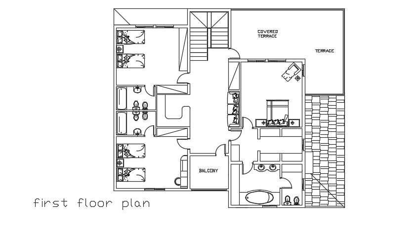
17x14m duplex bungalow first floor house plan AutoCAD drawing is given in this file. This is two story house building. On this first floor, the living room, master bedroom with the attached toilet, kid’s room with the attached toilet, guest room with the attached toilet, balcony, and covered terrace is available. For more details download the AutoCAD drawing file from our website. Thank you for downloading the AutoCAD drawing file from our website.
Uploaded by:

