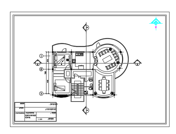
8x12m amazing bungalow house first floor plan drawing
Description
8x12m amazing bungalow house first floor plan drawing is given in this file. This is three story house building. On this first floor, the living room, kitchen, dining area, master bedroom, guest room, and common bathroom is available. For more details download the AutoCAD drawing file from our website. Thank you for downloading the AutoCAD drawing file from our website.
Uploaded by:

