16x19m wonderful first floor bungalow house plan diagram
Description
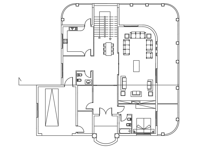
16x19m wonderful first floor bungalow house plan diagram is given in this file. This is two story house building. On this first floor, the living room, kitchen, dining area, master bedroom with the attached toilet, kid’s room, and common bathrooms are available. For more details download the AutoCAD drawing file from our cadbull website.
Uploaded by:

