16x19m wonderful ground floor bungalow house plan
Description
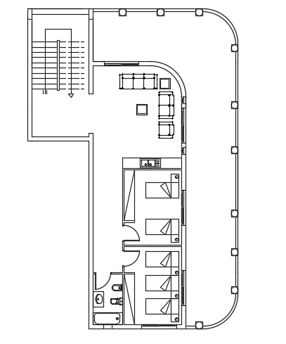
16x19m wonderful ground floor bungalow house plan diagram is given in this file. This is two story house building. On this ground floor, living room, open kitchen, guest room, kid’s bedroom, and common bathrooms are available. For more details download the AutoCAD drawing file from our cadbull website.
Uploaded by:

