The right side elevation view of the 12x14m house building CAD model
Description
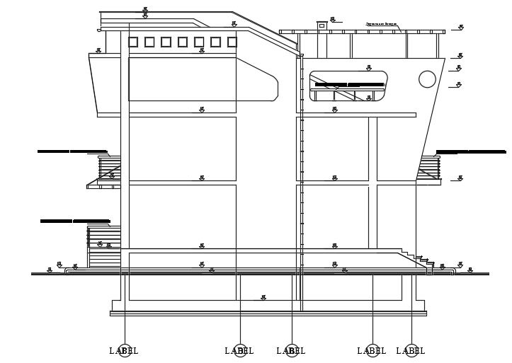
The right side elevation view of the 12x14m house building CAD model is given in this file. This is G+ 3 house building. On this ground floor, the car parking, kitchen, dining area, guest room, family lounge area, hall, and common bathroom is available. On this first floor, the living room, master bedroom with the attached toilet, guest bedroom, kid’s room, and common bathroom is available. On this second floor, the living room, master bedroom with the attached toilet, and balcony is available. For more details download the AutoCAD drawing file from our cadbull website.
Uploaded by:

