12x14m house first floor layout AutoCAD drawing is given in this file
Description
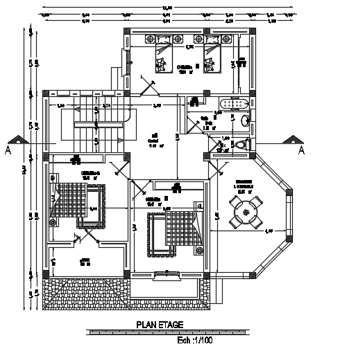
12x14m house first floor layout AutoCAD drawing is given in this file. This is two story house building. On this first floor, the master bedroom with the attached balcony, kid’s room with the attached balcony, guest bedroom, and common bathroom is available. The staircase is provided inside of a home. For more details download the AutoCAD drawing file from our cadbull website.
Uploaded by:

