11x11m architecture 5bhk house plan AutoCAD drawing is given
Description
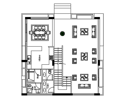
11x11m architecture 5bhk house plan AutoCAD drawing is given in this file. This is three story residential building. On this ground floor, the living room, kitchen, dining area, maid room with the attached bathroom, and common bathroom is available. For more details download the AutoCAD drawing model from our cadbull website.
Uploaded by:

