13x16m duplex house building window plans are given
Description
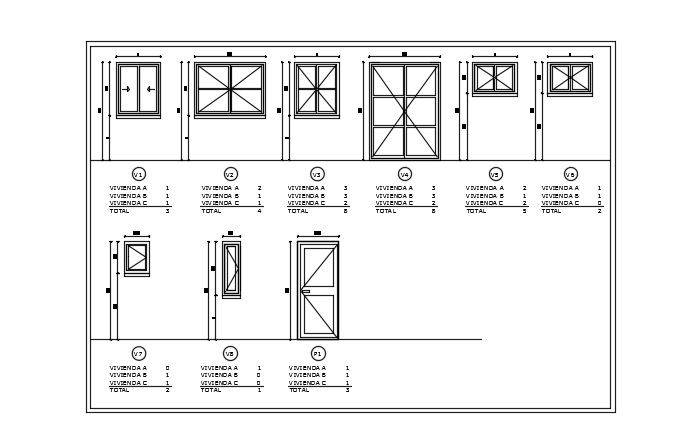
13x16m duplex house building window plans are given in this file. The breadth and height of each window is given. For more details download the AutoCAD drawing file from our cadbull website.
Uploaded by:

