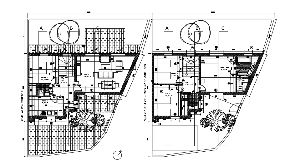
14x16m two story duplex house plan AutoCAD model is given in this file
Description
14x16m two story duplex house plan AutoCAD model is given in this file. On this ground floor, the living room, kitchen, dining area, master bedroom, and common bathroom is available. On this first floor, the living room, master bedroom with the attached toilet, kid’s bedroom, guest bedroom, and common bathroom is available. For more details download the AutoCAD drawing file from our cadbull website.
Uploaded by:

