7x22m Villa First Floor Furniture Layout CAD Drawing
Description
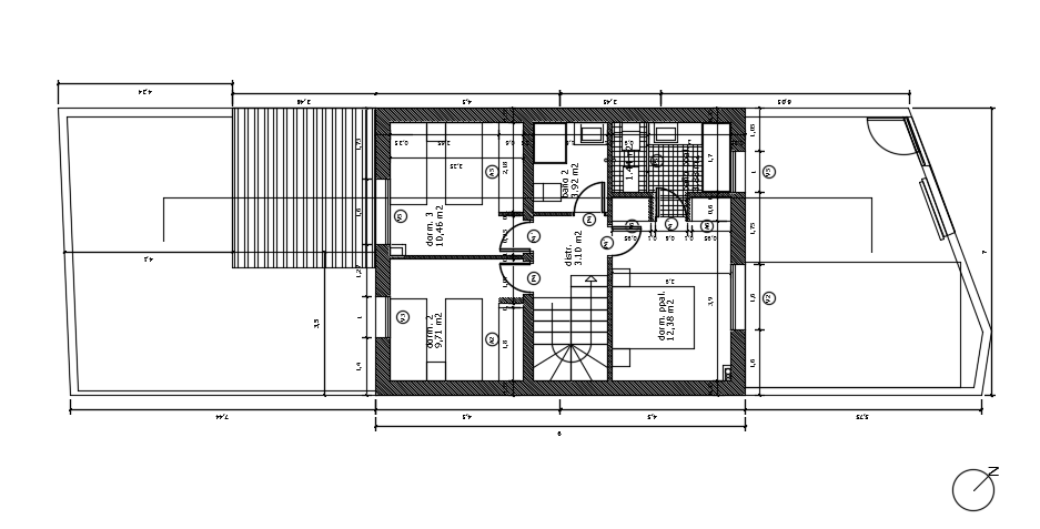
The furniture layout of the 7x22m first floor villa house plan AutoCAD model is given in this file. This is two story house building. On this first floor, the living room, master bedroom with the attached toilet, kid’s bedroom, guest bedroom, and common bathroom is available. For more details download the AutoCAD drawing file from our cadbull website.
Uploaded by:
