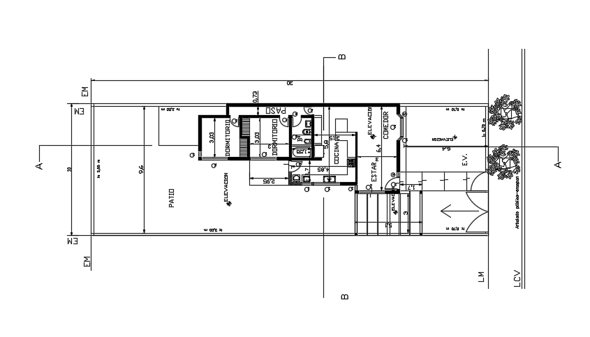
10x30m architecture single floor house plan AutoCAD model is given in this file
Description
10x30m architecture single floor house plan AutoCAD model is given in this file. This is a 2bhk house plan. On this floor plan, the living room, kitchen, dining area, family lounge area, master bedroom, kid’s bedroom, and common bathroom is available. For more details download the AutoCAD drawing model from our cadbull website.
Uploaded by:

