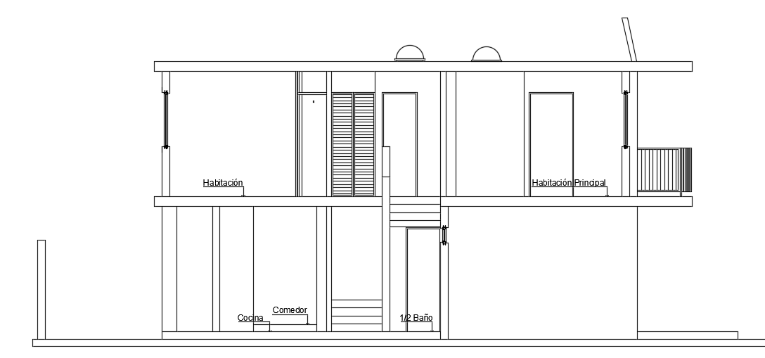
A section view of the 7x9m simple two story building AutoCAD model
Description
A section view of the 7x9m simple two story building AutoCAD model is given in this file. On this ground floor plan, the living room, dining area, kitchen, family lounge area, and common bathroom is available. On this first floor plan, the master bedroom with the attached toilet, kid’s bedroom, guest bedroom, and common bathroom is available. For more details download the AutoCAD drawing model from our cadbull website.
Uploaded by:

