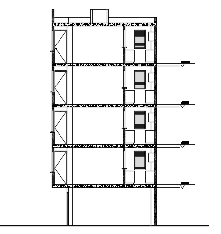
The left side section view of the 30x6m apartment building AutoCAD drawing
Description
The left side section view of the 30x6m apartment building AutoCAD drawing is given in this file. This is a five story apartment building. On this ground floor, the car parking, and common bathroom is available. On this first floor, the living room, kitchen, dining area, master bedroom with the attached toilet, guest bedroom, children’s bedroom, and common bathroom is available. On this second floor, the living room, kitchen, dining area, master bedroom with the attached toilet, guest bedroom, children’s bedroom, and common bathroom is available. On this third floor, the living room, kitchen, dining area, master bedroom with the attached toilet, guest bedroom, children’s bedroom, and common bathroom is available. On this fourth floor, the living room, kitchen, dining area, master bedroom with the attached toilet, guest bedroom, children’s bedroom, and common bathroom is available. For more details download the AutoCAD model from our cadbull website.
Uploaded by:
