20x12m five story apartment ground floor cad drawing is given in this file
Description
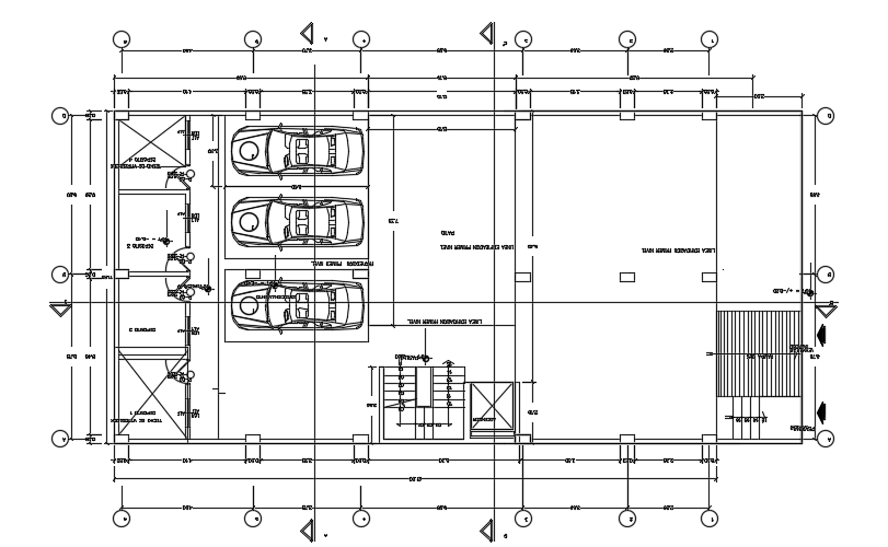
20x12m five story apartment ground floor cad drawing is given in this file. This is G+ 4 apartment building. On this ground floor, store room, and car parking is available. For more details download the AutoCAD model from our cadbull website.
Uploaded by:

