A layout of the 20x12m five story apartment floor plan cad drawing
Description
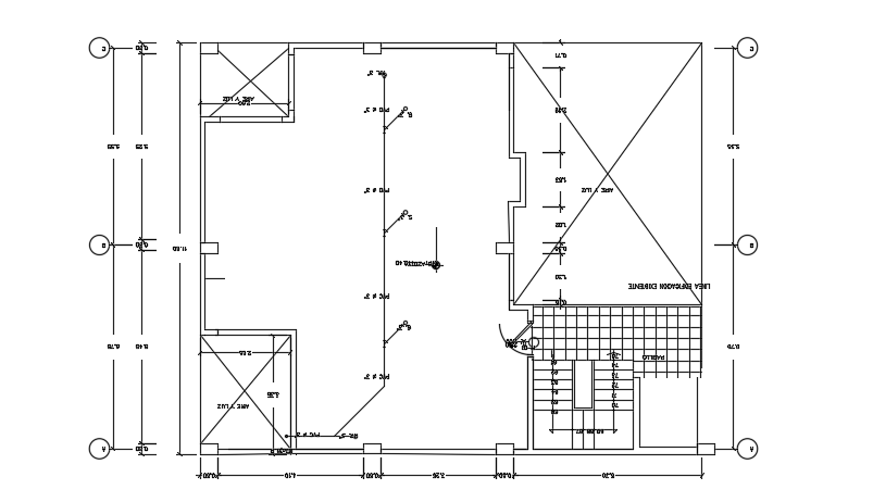
A layout of the 20x12m five story apartment floor plan cad drawing is given in this file. On each floor, two houses are available with 3bhk. This is G+ 4 apartment building. On this first floor, the living room, kitchen, dining area, master bedroom with the attached toilet, kid’s bedroom, guest bedroom, and common bathroom is available. For more details download the AutoCAD model from our cadbull website.
Uploaded by:

