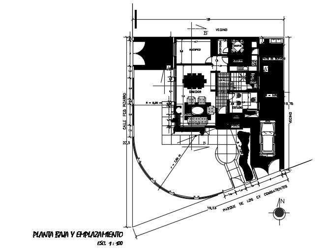
18x16m architecture ground floor house plan AutoCAD 2d drawing
Description
18x16m architecture ground floor house plan AutoCAD 2d drawing is given in this file. This is two story house building. On this ground floor, the car parking, living room, dining area, kitchen, storeroom, and common bathroom is available. The staircase is provided inside of a home. For more details download the AutoCAD model from our cadbull website.
Uploaded by:
