10x23m multifamily house second floor plan AutoCAD model is given
Description
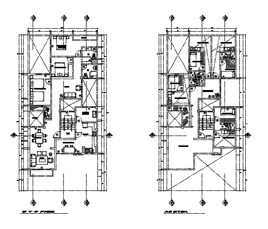
10x23m multifamily house second floor plan AutoCAD model is given in this file. This is five story house building. On second floor, the living room, car parking, living room, kitchen, dining area, master bedroom with the attached toilet, drawing room, study room, and common bathroom is available. For more details download the AutoCAD model from our cadbull website.
Uploaded by:

