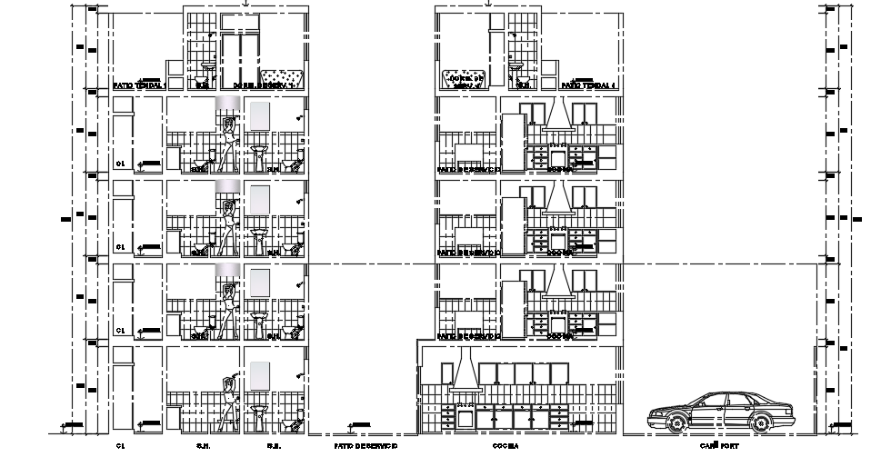
The front and back cut section view of the10x23m multifamily house building
Description
The front and back cut section view of the10x23m multifamily house building AutoCAD model is given in this file. This is five story house building. On ground floor, the living room, car parking, living room, kitchen, dining area, master bedroom with the attached toilet, drawing room, study room, and common bathroom is available. On this first floor, the living room, kitchen, dining area, master bedroom with the attached toilet, kid’s bedroom, guest bedroom, and common bathroom is available. On second floor, the living room, car parking, living room, kitchen, dining area, master bedroom with the attached toilet, drawing room, study room, and common bathroom is available. For more details download the AutoCAD model from our cadbull website.
Uploaded by:

