12x6m 3bhk house plan plumbing layout CAD drawing is given in this file
Description
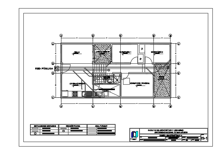
12x6m 3bhk house plan plumbing layout CAD drawing is given in this file. This is a single story residential building. On this floor plan, the living room, kitchen, dining area, master bedroom, kids’ bedroom, guest bedroom, garden, and common bathroom is available. For more details download the AutoCAD model from our cadbull website.
File Type:
DWG
File Size:
387 KB
Category::
Dwg Cad Blocks
Sub Category::
Autocad Plumbing Fixture Blocks
type:
Gold
Uploaded by:

